Geelong Grammar School School for Performing Arts & Creative Education

  • client Geelong Grammar School

    status Complete 2015

    location Biddlecombe Avenue, Corio, Victoria

    traditional land owners Wadawurrung People

    photography John Gollings

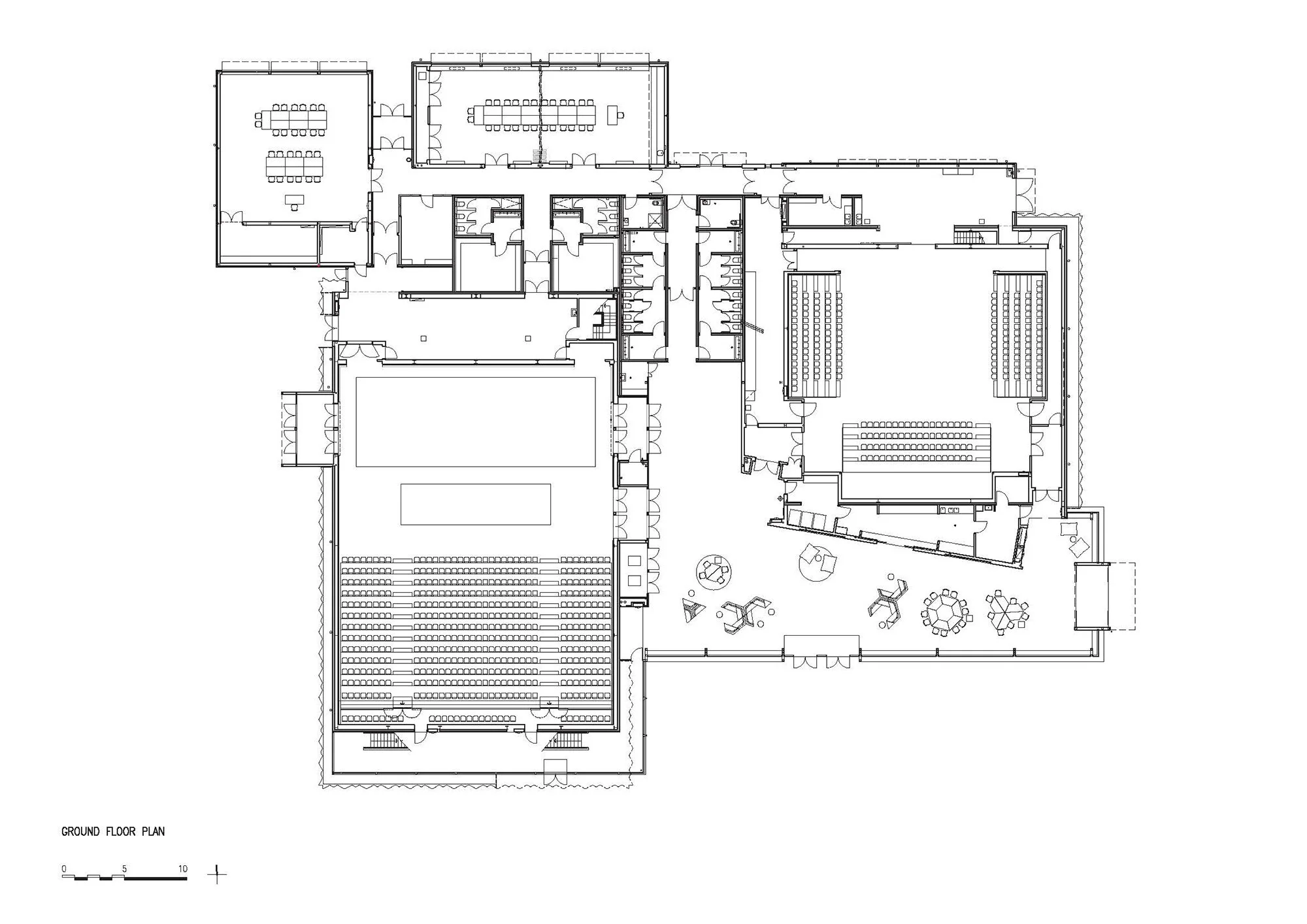
  • The School for Performing Arts & Creative Education, known as S.P.A.C.E. is the new home for creative and cultural activities at the Corio campus of Geelong Grammar School. The focus of the venue is around two different types of performance space, a contemporary black box theatre and a flat floor multi-purpose hall, with shared front and back of house facilities. The venue also provides accommodation for the Drama Department, including a multi-purpose studio and drama classrooms, which double as rehearsal and green room spaces. The main foyer has been designed as an interactive learning space when not in performance mode. It is set-up with a digital wall and flexible furniture to serve the creative education program. The School for Performing Arts & Creative Education is the place where students, staff and parents gather to celebrate and enjoy the cultural life of the school community.

  • 2016 Australian Institute of Architects [National]

    Education Architecture [commendation]

    Educational Architecture Award [Victorian]

Previous
Previous

The Ian Potter Centre for Performing Arts

Next
Next

McCraith 'Butterfly' House Refurbishment